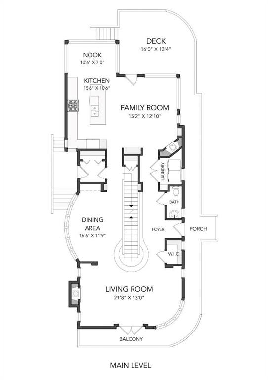
OPEN HOUSE Saturday Oct 14th 1-3:30pm! Discover an exquisite custom-designed three-bedroom plus den residence, envisioned by renowned architect Jeremy Sturgess, nestled in the heart of Mount Royal. This captivating corner lot boasts exceptional curb appeal, offers privacy, and is enveloped by hedged borders and river rock garden walls. Step inside and be welcomed by an inviting living space that beckons you to entertain and create lasting memories. The living room is a marvel with its gracefully curved window wall, French doors leading to a balcony, and a cozy wood-burning fireplace that seamlessly flows into the dining room. This combination creates an enchanting atmosphere for both intimate gatherings and grand soirées. The heart of the home lies in the expansive, sun-drenched open concept family room, kitchen, and casual dining nook. Bathed in natural light from floor-to-ceiling windows, this area not only offers a breathtaking view of the private, lush landscaping and spacious deck but also provides a warm and inviting gathering space for your family. The classically appointed kitchen features white cabinets and a central island crowned with luxurious granite. Venture upstairs to your private sanctuary in the primary bedroom. With its vaulted ceiling, ample walk-in closet, and a five-piece ensuite illuminated by skylights, it offers a tranquil retreat. The second-floor hallway even boasts a charming window seat, perfect for quiet moments of reading or homework. Additionally, a dedicated office space and two well-proportioned bedrooms await, ideally suited for children or guests. The fully developed basement adds flexibility to your lifestyle, with a versatile recreation/fitness room, a fourth bedroom, a full bathroom, and ample storage. The convenience of a spacious under-drive attached double garage, complete with a mudroom connecting to the basement makes coming and going effortless. This property enjoys an enviable location within a short stroll to top-notch schools, verdant parks, tantalizing restaurants, and the vibrant uptown scene. Embrace a lifestyle defined by the allure of the private backyard oasis, the seamless open concept design, and the abundant natural light that infuses every corner of this remarkable home.