Courtesy of Sam Corea of Re/Max House of Real Estate
LIST PRICE
$649,000
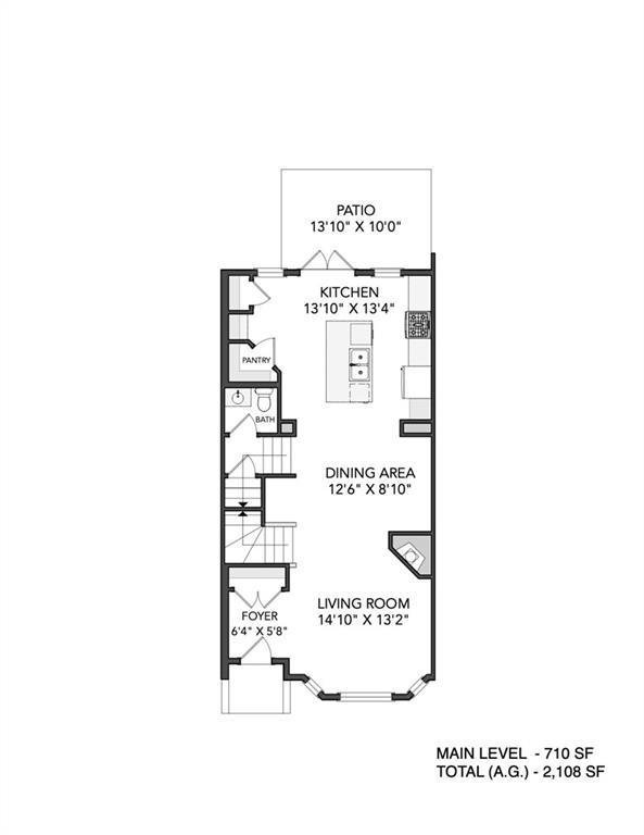
73 Somme Boulevard SW
Sold
Courtesy of Sam Corea of Re/Max House of Real Estate
More information
Features & amenities
- Landscaped
- Level
- Low Maintenance Landscape
- Near Golf Course
- Near Shopping Center
- Heating Forced Air, Natural Gas
- Fireplace 1
- Water Public
Additional details
- Type Residential
- Subtype Row/Townhouse
Listing is presented by
Sam Corea
RE/MAX House Of Real Estate